-
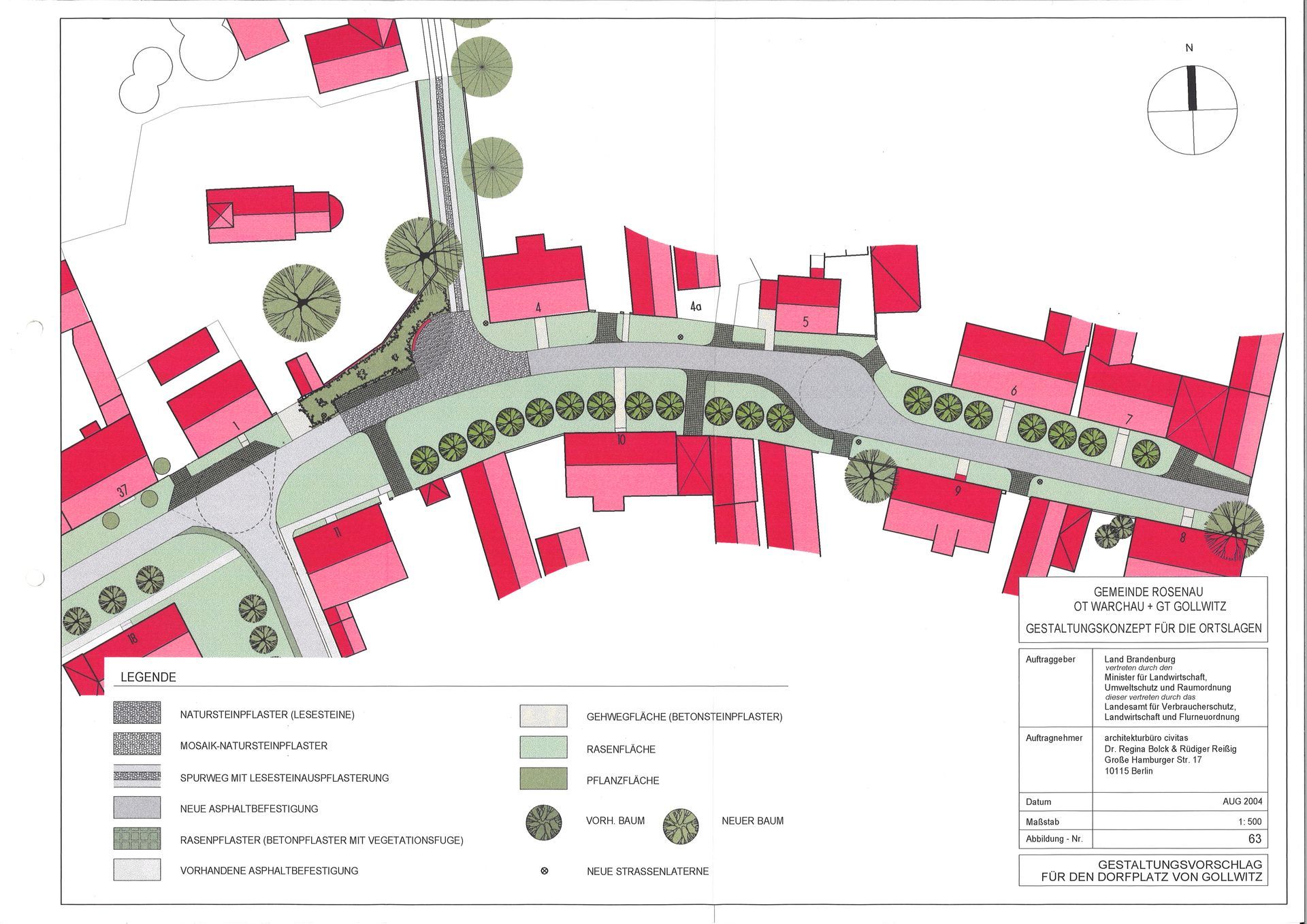
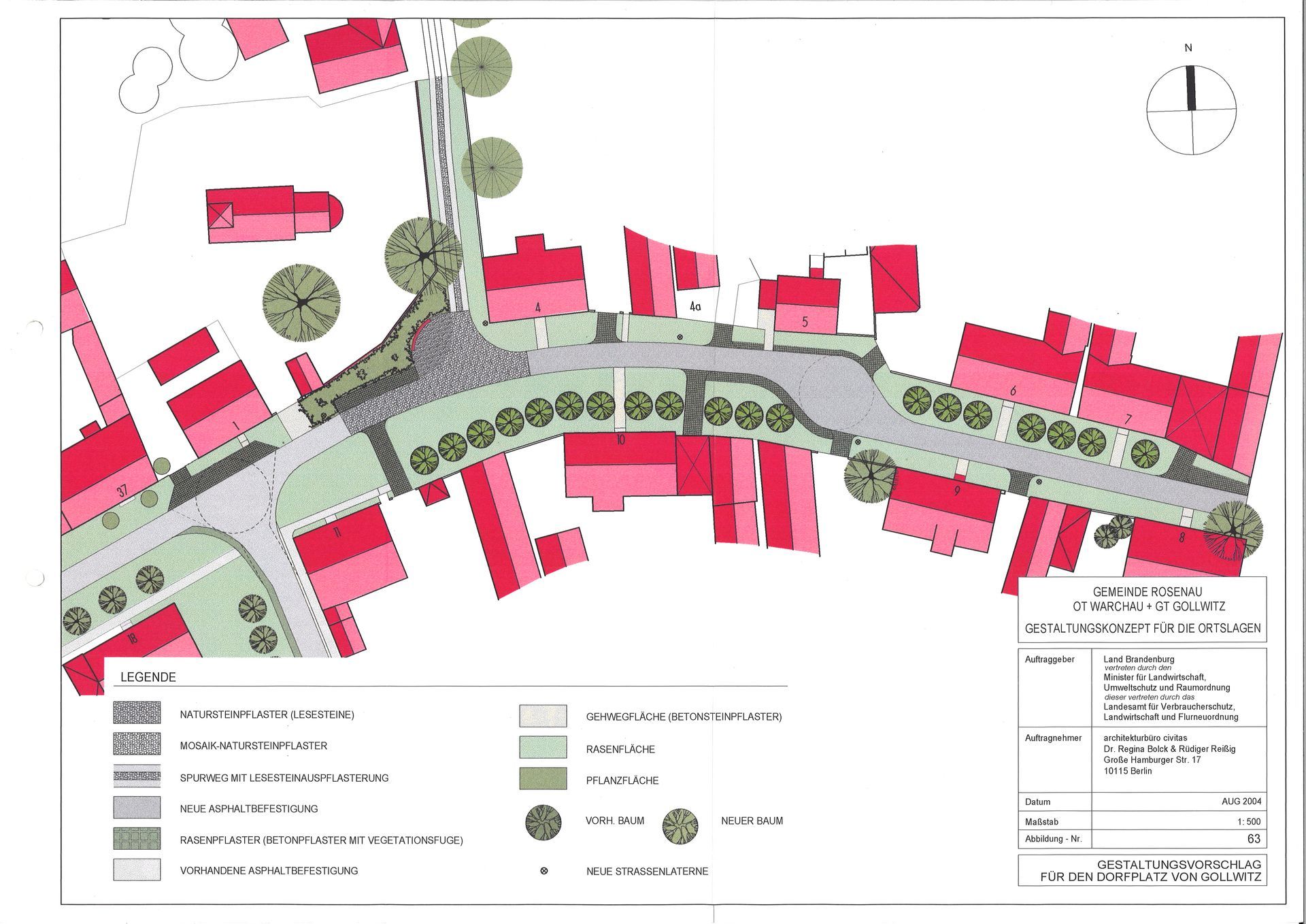
Gestaltungskonzept für den OT Warchau
Bezeichnung
Gestaltungskonzept für den OT Warchau und den GT Gollwitz der Gemeinde Rosenau
Auftraggeber
Land Brandenburg, Landesamt für Verbraucherschutz, Landwirtschaft und Flurneuordnung
Größe
Das Verfahrensgebiet umfasst die Ortslagen von Warchau und Gollwitz.
Weitere Info
Die Aufstellung des Plans über die gemeinschaftlichen und öffentlichen Anlagen nach § 41 FlurbG im Zusammenhang mit dem Bodenordnungsverfahren „Ortslage Warchau – Gollwitz“ hat die Aufgabe, die Durchführung der von der Teilnehmergemeinschaft und der Gemeinde Rosenau beabsichtigten Vorhaben öffentlich-rechtlich vorzubereiten und dauerhaft abzusichern. Als fachübergreifendes Instrument zur Förderung der Landwicklung werden mit dem Plan nach § 41 FlurbG folgende Ziele angestrebt:
- die umweltgerechte Verbesserung der infrastrukturellen Erschließung,
- die Förderung der kommunalen Entwicklung für die Ortslagen von Warchau und Gollwitz
- die Durchführung von Maßnahmen der Dorfentwicklung
- die Unterstützung von Maßnahmen des Umweltschutzes
Mit der Planfeststellung werden alle nach anderen Gesetzen notwendigen einzelnen behördlichen Entscheidungen, wie Erlaubnisse, Bewilligungen, Genehmigungen oder Zustimmungen, in einem einzigen Verwaltungsakt zusammengefasst. Zweck der Planfeststellung der gemeinschaftlichen und öffentlichen Anlagen ist es, die öffentlich-rechtlichen Beziehungen zwischen dem Träger der Vorhaben und den Betroffenen abschließend und umfassend rechtsgestaltend zu regeln und dabei alle durch die Vorhaben berührten öffentlichen, gemeinschaftlichen und privaten Interessen auszugleichen.







